PRIMAT STARPRIM 3095/N Wertschutzschrank Tresor Klasse III (3) nach EN 1143-1
Art.Nr.: StarPrim 3095/N
Hersteller: PRIMAT
Anfrage
inkl. 19 % Mwst.
Hochwertiger Wertschutzschrank / Premiumtresor
PRIMAT STARPRIM 3095/N
Zertifizierung: Widerstandsgrad III /3 nach EN 1143-1
geprüft durch VdS
Widerstandswert RU (Resistance Unit) für Teilzugriff/Vollzugriff: 80/120 RU
RU = geprüfter Einbruchschutz nach garantiertem Widerstandswert
Nach EN 1143-1 zertifizierte Wertschutzschränke bieten geprüften Einbruchschutz nach garantiertem Widerstandswert RU gegen Angriffe mit mechanisch und/oder thermisch wirkenden Einbruchswerkzeugen.
Bezeichnung 30/30: Wert 1 bezeichnet den Widerstandswert für Teildurchbruch, Wert 2 für Volldurchbruch (z.B. Öffnen der Tür).
Verschluss standard:
- Doppelbartschlüsselschloss inkl. 2 Schlüsseln
Merkmale:
- Türrahmen mit dicht schliessender Feuerdichtung, verhindert das direkte Eindringen von Brandgasen, Staub und Flammen.
- Korpus und Tür mit hochtemperaturbetändiger Füllung
- vorgerüstet zur Bodenverankerung
- Türöffnungswinkel ca. 205° ermöglicht die Nutzung der vollen Durchgangsbreite

Riegelwerk:
- 3-seitiges Riegelwerk mit Vierkantbolzen 40x10mm
- Die Scharnierseite wird gesichert über ein durchgehendes Hintergreifprofil
Ausstattung:
- Innentresor optional möglich gegen Aufpreis
- Fachböden in der Höhe verstellbar in 50mm Abständen
- Fachböden bei CLAVIS bereits enthalten: 1
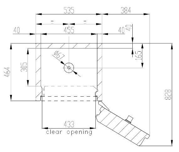
Technische Merkmale:
| Außenmaße (mm) | Innenmaße (mm) | Ordner | Fachböden | Volumen | Gewicht | ||||
|---|---|---|---|---|---|---|---|---|---|
| Höhe | Breite | Tiefe | Höhe | Breite | Tiefe | Anzahl | Anzahl | Liter | kg |
| 785 | 535 | 464 | 694 | 455 | 305 | 12 | 1 | 96 | 340 |
Tiefe zzgl. 45-60mm Beschläge je nach Schloss

Herstellerkennzeichnung
Herstellerkennzeichnung
Name: PRIMAT d.d.Strasse: Industrijska ulica 22
Postleitzahl: SI-2000
Stadt: Maribor
Land: SI
Kontakt: https://primat.si